石油タンカーの安全設計と危険区域の分類
現在地: ホームページ » ニュース » オイルタンカー » 石油タンカーの安全設計と危険区域の分類

石油タンカーの安全設計と危険区域の分類

数ブラウズ:0     著者:サイトエディタ     公開された: 2024-01-05      起源:パワード

お問い合わせ

facebook sharing button
twitter sharing button
line sharing button
wechat sharing button
linkedin sharing button
pinterest sharing button
whatsapp sharing button
sharethis sharing button
石油タンカーの安全設計と危険区域の分類


オイルタンカー バルク液体輸送に特化した船で、主にバルクの原油や引火点60℃以下の石油製品の輸送を指します。IEC-60092-502によると、引火点が60℃未満の石油製品を輸送する船舶は危険性が高く、仕様書には危険区域の区分に関するより詳細な要件があり、危険区域内のすべての電気機器は関連する爆発に適合する必要があります。 -証​​明要件。危険区域の分類 オイルタンカー 安全設計の非常に重要な部分です。


オイルタンカー-9


石油タンカーの危険区域分類の原則

危険区域の分類 オイルタンカー 引火点が 60°C 以下の可燃性液体を輸送する液体貨物船に関する IEC-60092-502 に主に準拠しています。これは、危険エリアをゾーン 0、ゾーン 1、およびゾーン 2 に分割し、ゾーン 0 が最も危険で、ゾーン 2 が最も危険ではありません。貨物倉、石油および水のタンク、貨物倉と同じエリアにある圧力真空配管またはその他の換気システム、貨物または配管を含む内部空間、および可燃性ガスまたは蒸気を扱う機器はすべてゾーン 0 に分類されます。


ゾーン 1 の定義は比較的複雑で、以下で構成されます。 a) 液体貨物タンクにすぐ隣接する密閉された敷地。b) 貨物ホースが保管される区画、および貨物ラインを含む密閉型および半密閉型の敷地。c) 液体貨物タンク内のハッチ、ガスまたは蒸気の出口、貨物分配バルブ、貨物パイプのフランジ、圧力および真空バルブに隣接するエリア。図2は、ゾーン1の拡張、例えば、ゾーン1の敷地、入口、出口、換気口、通気口などとして単純に理解することができる。オープンデッキエリアの境界にあるゾーン 1 の外側への拡張部分。出入口、換気口、換気口など。また、オープンデッキ構造の特性により、甲板上高さ2.4メートルまでの「出っ張り」のある骨材のある貨物倉エリアをゾーン1とし、「出っ張り」のある甲板をゾーン1とします。 「デッキ上 2.4 メートルまでの骨材はゾーン 2 とみなされます。


石油タンカー危険区域分類表


さまざまなタイプの開口部のレイアウトと影響

の開口部 オイルタンカー 主に次の 3 種類に分類されます。1 つは、マンホール カバー、ハッチ カバー、ドア、窓、洗浄ハッチ カバーなどの人員アクセスおよび日常使用のための開口部です。第二に、自然換気、機械換気、陽圧換気などの客室換気。3 つ目は、エアチューブ、深深測定チューブ、高圧リリーフバルブ、通気性マスト、バキュームリリーサーなどの通気性システムです。最初のタイプの開口部は、乗組員の使用要件を満たし、危険エリアの影響に十分な注意を払う必要があります。ここでの説明は、ハッチ換気および特別な通気システムの配置と影響に焦点を当てています。


合理的かつ効果的な換気により、通常は吸気や排気の形での可燃性ガスの蓄積を防ぐことができます。危険な場所の換気のためには、第一に、安全な場所の換気から遠く離れている必要があります。第二に、危険な場所の吸気口は可能な限り安全な場所に配置する必要があります。本当に避けられない場合は、時間内に船級協会に相談する必要があります。最後に、より危険な領域に排気口を配置することはできません。そうでない場合は、危険レベルを高める必要があります。ポンプ室の換気配置を考慮すると、 オイルタンカー 例として、ポンプ室が 1 つのエリアの貨物油タンクに隣接している場合、人員作業の要因により、このエリアは不活性領域ではないため、ポンプ室の換気環境は特に重要です。ポンプ室は換気のためのポンピング (30 回/時間) の邪魔になるため、ポンプ室の空気入口と出口は他の危険源からできるだけ離す必要があり、両者が互いに影響を与えることはできません。空気入口は安全な場所にある必要がありますが、仕様ではポンプ室の空気入口の周囲 3 メートルも危険な場所にあるため、設計時に考慮する必要があります。


貨物ポンプ室の換気


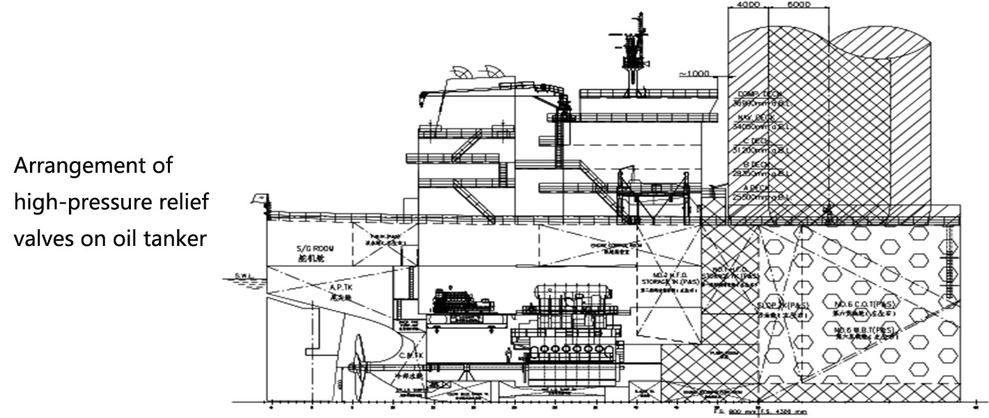
貨物倉内の高圧ベントバルブ、ベントマスト、バキュームリリーサーは、貨物倉に特有のベント装置です。 オイルタンカー。これらの装置は、貨物倉内の石油とガスの圧力が高すぎると、石油とガスを外気中に放出するため、IEC はそのような装置の危険領域に対して最も厳しい制限を設けています。貨物の取り扱い、バラスト、または液体貨物タンクからのガスの排出中に生成される大量のガスまたは蒸気混合物を提供する液体貨物ブリーザーパイプの周囲の領域。ブリーザーから上向きに半径 6 メートルの高さ無制限の垂直シリンダーブリーザーパイプから下方向に半径6メートルの半球内のオープンデッキエリアまたはオープンデッキの半密閉エリアがゾーン1に属し、ゾーン1の外側4メートルがゾーン2に属します。 , 図に示すように、簡単に言うと、彼らの影響範囲は半径 10 メートル、高さ無制限の円柱です。貨物倉ベンチレーターの位置は、次の要素を考慮する必要があります。まず、上部構造から遠ざけます。第二に、貨物倉セクションの甲板保管室と甲板サーチライトマストの換気を避けること。第三に、ボーマンの倉庫のドアから少なくとも 10 メートルの距離を保ちます。


オイルタンカーにおける高圧リリーフバルブの配置


Conclude

のデザインについては、 オイルタンカー、防爆は安全設計の重要な部分であり、設計が適切でないと、将来の使用に大きな危険が伴います。設計者は、石油タンカーの危険区域の分類に注意を払い、設計プロセスにおけるさまざまな関係者の調整に注意を払い、石油タンカーのあらゆる種類の開口部、換気、空気および客室のレイアウトが適切に設計されるようにする必要があります。 オイルタンカー 規制や基準を満たすことができます。 秦海市 当社は品質管理と工程管理を重視し、常に内部管理レベルを向上させています。当社は中国船級協会が発行するCCS品質管理証明書を取得し、政府部門による認証と環境影響評価と受け入れに合格しています。近年、会社は遵守しています。国家戦略的展開と船舶産業の情報化とインテリジェントな発展の要件に対応しています。「両者の統合」を促進し、生産自動化とインテリジェント製造の実装を継続します。当社にはいくつかの自動組立と半自動組立があります。 生産ライン。

製品カテゴリ

ランダムな製品